fbpx
South-West Brisbane
South-West Brisbane
North Brisbane
West Brisbane
Sunshine Coast
Gold Coast
Toowoomba

Apartment Type A

From $585,000

Nestled amidst the tranquil surroundings of the Toowoomba Golf Club

Step into luxury over 60s living at The Ninth Middle Ridge, where each apartment has been designed with comfort and convenience in mind.

The compact, modern kitchen is equipped with a suite of appliances, including a built-in dishwasher, sleek stainless-steel oven, and induction stovetop. The large pantry offers plenty of storage which complements this cleverly designed space. The kitchen window provides the perfect place to grow herbs or potted plants. Whether you are whipping up a gourmet feast or simply enjoying your morning coffee, this kitchen will cater to your every need.

Our apartments boast age-appropriate features to help residents comfortably age in place and stay in their home for longer. In addition to an onsite village manager, each apartment is equipped with a 24/7 emergency response system, so you can have peace of mind knowing you are comfortable and secure in your home.

graphic_left

Apartment Features

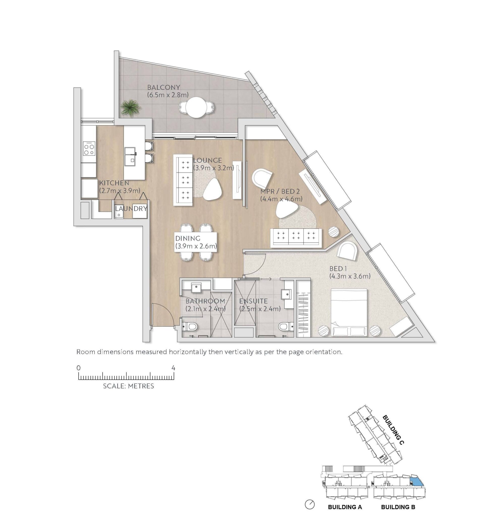
  • Two spacious bedrooms with a master ensuite and guest bathroom
  • Stone benchtops in the kitchen and bathrooms
  • High ceilings with fans in the bedrooms and ducted, zoned air-conditioning throughout
  • Quiet corner location overlooking the community gardens
  • Modern appliances including a built-in dishwasher, sleek stainless-steel oven, induction stove top, and dryer

Discover our facilities

View all facilities
Our location
245 Rowbotham Street, Middle Ridge QLD
Get directions

Opening hours

If you’d like to visit us outside these hours please get in touch with us

  • Monday - Friday 8:30 am - 5:00 pm
  • Saturday By appointment only
  • Sunday Closed

The Ninth

Unmatched comfort and security, vibrant social connections, and a range of tailored amenities

Explore community

Get in touch

Enquiries

Not sure where to start? We’re here to help.

The Ninth Middle Ridge Team

Our door is always open and we promise to put the needs of our residents first.

Shirley
Shirley
Sales Consultant
Mark
Mark
Village Manager - The Ninth
Amy
Amy
Receptionist/Bus Driver
Paul
Paul
Maintenance Worker

Location

Give us a visit

Address
245 Rowbotham Street, Middle Ridge QLD
Opening hours
Monday - Friday 8:30 am - 5:00 pm
Saturday By appointment only
Sunday Closed

Please fill out the form below and we’ll be in touch with you shortly
graphic_right
Search

Quick Enquiry Form

Please enter your details below and our team will be in contact soon.

"*" indicates required fields

Quick Enquiry Form

Please enter your details below and our team will be in contact soon.

"*" indicates required fields

Quick Enquiry Form

Please enter your details below and our team will be in contact soon.

"*" indicates required fields

Quick Enquiry Form

Please enter your details below and our team will be in contact soon.

"*" indicates required fields

Quick Enquiry Form

Please enter your details below and our team will be in contact soon.

"*" indicates required fields

Quick Enquiry Form

Please enter your details below and our team will be in contact soon.

"*" indicates required fields

Quick Enquiry Form

Please enter your details below and our team will be in contact soon.

"*" indicates required fields