fbpx
South-West Brisbane
South-West Brisbane
North Brisbane
Inner Brisbane
West Brisbane
Sunshine Coast
Gold Coast
Toowoomba

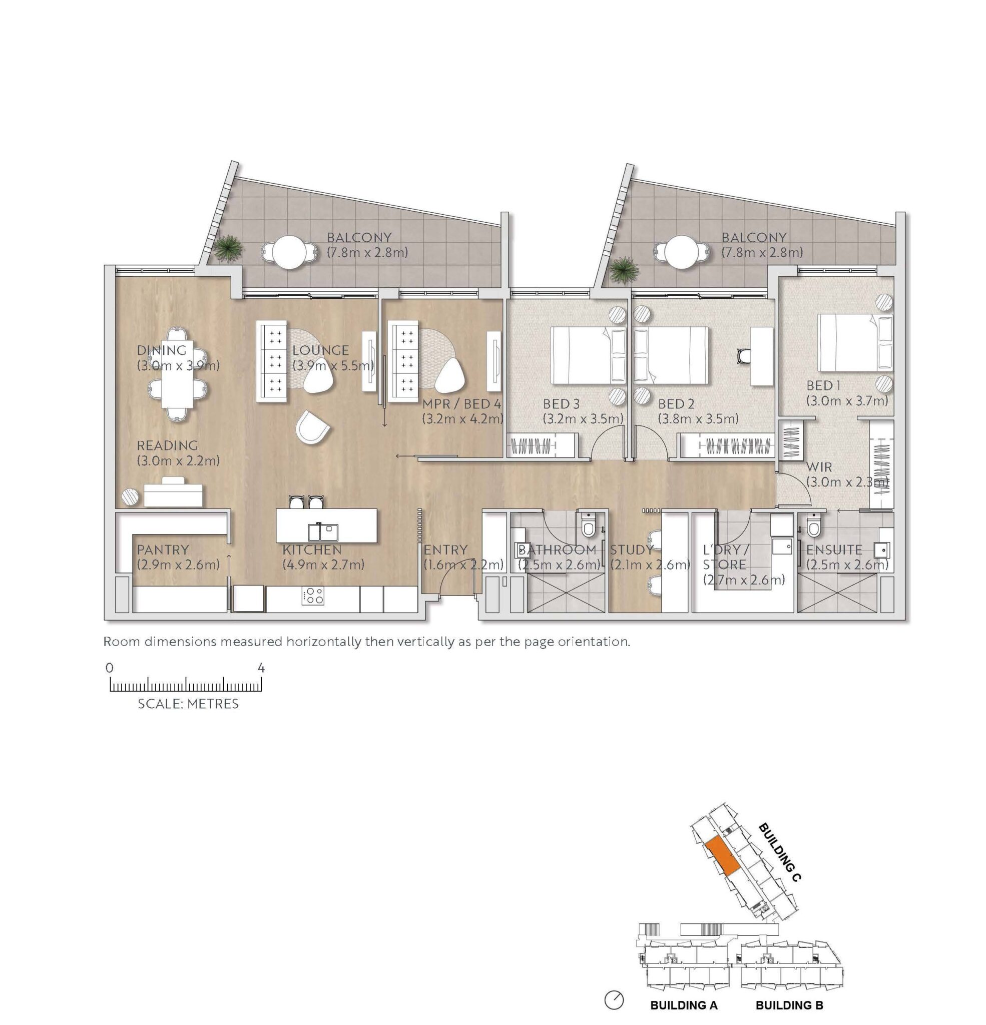
Apartment Type F

From $1,200,000

Type F - Enjoy the spacious three bedrooms, study, multipurpose-room and two balconies

Experience the epitome of retirement living in this apartment overlooking the putting green and fairways of the Toowoomba Golf Club. Boasting three bedrooms, a spacious multi-purpose room, a study and two balconies, there is endless space to relax and live life, your way. Enjoy our vibrant and social over 60’s community and facilities as much, or as little, as you like.

Whether you opt for the ground floor apartments with courtyard-style patios and built-in planter boxes or prefer the elevated views of the top-floor apartments, each residence offers a blend of comfort and convenience.

Designed with entertainers in mind, the expansive chefs kitchen is equipped with stainless steel appliances, including two ovens, an induction cooktop, and a built-in dishwasher. The butlers pantry offers a wine fridge, sink, and ample storage.

graphic_left

Apartment Features

  • Three spacious bedrooms, master ensuite and guest bathroom, multi-purpose room, and study
  • Separate laundry room equipped with a dryer
  • Modern open plan living leading out to two outdoor areas through floor-to-ceiling glass sliding doors
  • Hybrid flooring throughout living areas, with carpeted bedrooms and slip-resistant tiles in the bathrooms
  • High ceilings with fans and ducted, zoned air-conditioning

Discover our facilities

View all facilities
Our location
245 Rowbotham Street, Middle Ridge QLD
Get directions

Opening hours

If you’d like to visit us outside these hours please get in touch with us

  • Monday - Friday 8:30 am - 5:00 pm
  • Saturday By appointment only
  • Sunday Closed

The Ninth

Unmatched comfort and security, vibrant social connections, and a range of tailored amenities

Explore community

Get in touch

Enquiries

Not sure where to start? We’re here to help.

The Ninth Middle Ridge Team

Our door is always open and we promise to put the needs of our residents first.

Shirley
Shirley
Sales Consultant
Mark
Mark
Village Manager - The Ninth
Amy
Amy
Receptionist/Bus Driver
Paul
Paul
Maintenance Worker

Location

Give us a visit

Address
245 Rowbotham Street, Middle Ridge QLD
Opening hours
Monday - Friday 8:30 am - 5:00 pm
Saturday By appointment only
Sunday Closed

Please fill out the form below and we’ll be in touch with you shortly
graphic_right
Search

Quick Enquiry Form

Please enter your details below and our team will be in contact soon.

"*" indicates required fields

Quick Enquiry Form

Quick Enquiry Form

Please enter your details below and our team will be in contact soon.

"*" indicates required fields

Quick Enquiry Form

Please enter your details below and our team will be in contact soon.

"*" indicates required fields

Quick Enquiry Form

Please enter your details below and our team will be in contact soon.

"*" indicates required fields

Quick Enquiry Form

Please enter your details below and our team will be in contact soon.

"*" indicates required fields

Quick Enquiry Form

Please enter your details below and our team will be in contact soon.

"*" indicates required fields

Quick Enquiry Form

Please enter your details below and our team will be in contact soon.

"*" indicates required fields