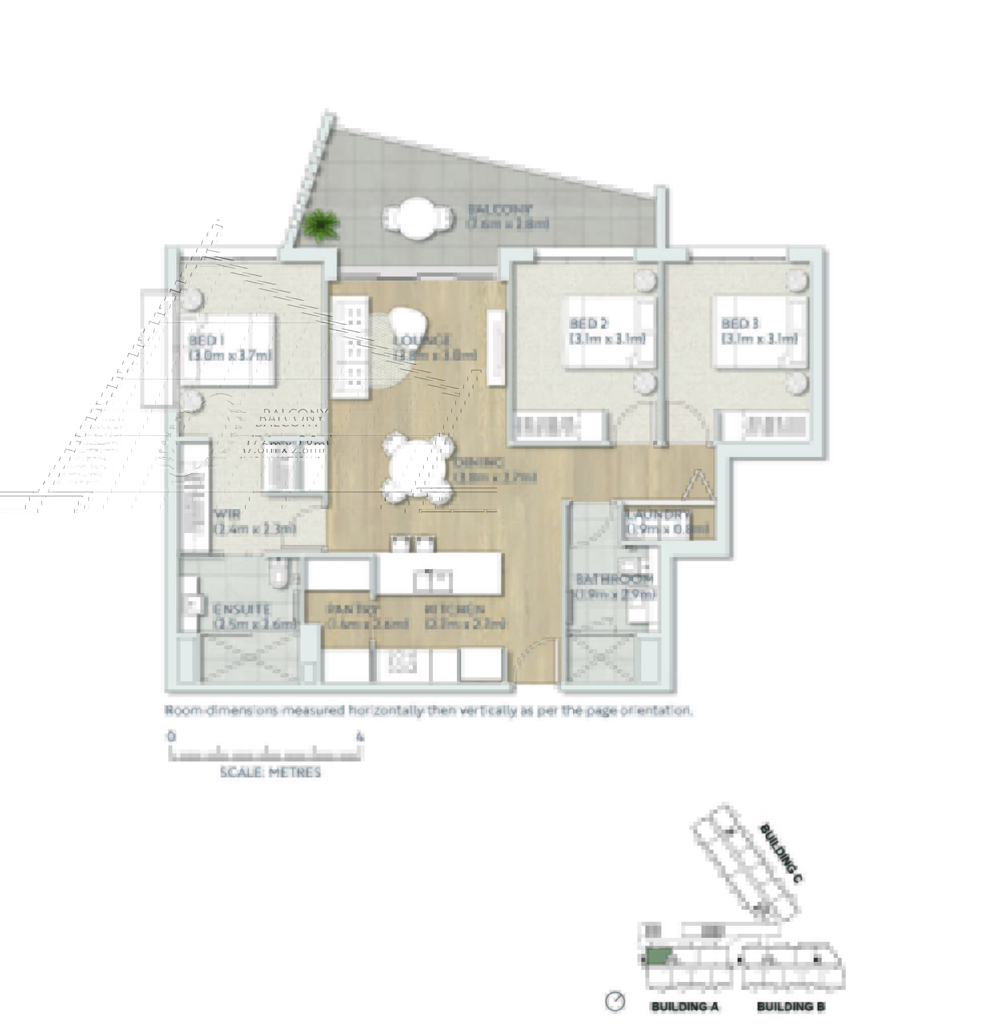
Apartment Type D

Type D - Enjoy lush green views down the ninth fairway
Discover picturesque over 60’s living at The Ninth Middle Ridge, where every detail has been thoughtfully curated to enhance your lifestyle. Step into this beautifully presented apartment and discover a world of comfort and elegance. The open-plan living area has a seamless flow, inviting you to relax and entertain in style. The balcony offers panoramic views that sweep across the fairways of the prestigious Toowoomba Golf Club.
The galley-style kitchen is a chef’s delight, complete with a large walk-in pantry for added convenience, modern appliances, and stone benchtops. The sleek European laundry seamlessly combines accessibility and function, while being conveniently tucked away.
The three spacious bedrooms each boast built-in wardrobes that provide ample storage space. This apartment was designed with an assortment of discrete and age-appropriate features to help residents comfortably age in place and stay in their home for longer. Enjoy plush carpeting throughout the bedrooms and slip-resistant tiling in the bathrooms for an added level of safety.










Apartment Features
- Three spacious bedrooms with stunning master ensuite and guest bathroom
- High ceilings, ducted air-conditioning, and ceiling fans throughout
- Stone benchtops in the kitchen, laundry, and bathrooms
- Open-plan living leading to a balcony with views down the fairway
- Modern appliances including a built-in dishwasher, sleek stainless-steel oven, induction stove top, and dryer
Discover our facilities
View all facilitiesOpening hours
If you’d like to visit us outside these hours please get in touch with us
- Monday - Friday 8:30 am - 5:00 pm
- Saturday By appointment only
- Sunday Closed
The Ninth
Unmatched comfort and security, vibrant social connections, and a range of tailored amenities
Get in touch
Enquiries
Not sure where to start? We’re here to help.
The Ninth Middle Ridge Team
Our door is always open and we promise to put the needs of our residents first.




Location
Give us a visit