Apartment Type B

Type B - Your choice of stunning views or courtyard charm
Step into luxury over 60s living at The Ninth Middle Ridge, where each apartment has been designed with comfort and convenience in mind.
Nestled amidst the tranquil surroundings of the Toowoomba Golf Club, discover our 2-bedroom, 2-bathroom apartments with a variety of outlooks to choose from. Whether you prefer views of the lush green golf course, the rolling escarpment, or the intimate charm of courtyard views, there a setting just for you.
Our apartments boast age-appropriate features to help residents comfortably age in place and stay in their homes for longer. In addition to an onsite village manager, each apartment is equipped with a 24/7 emergency response system, so you can have peace of mind knowing you are comfortable and secure in your home.
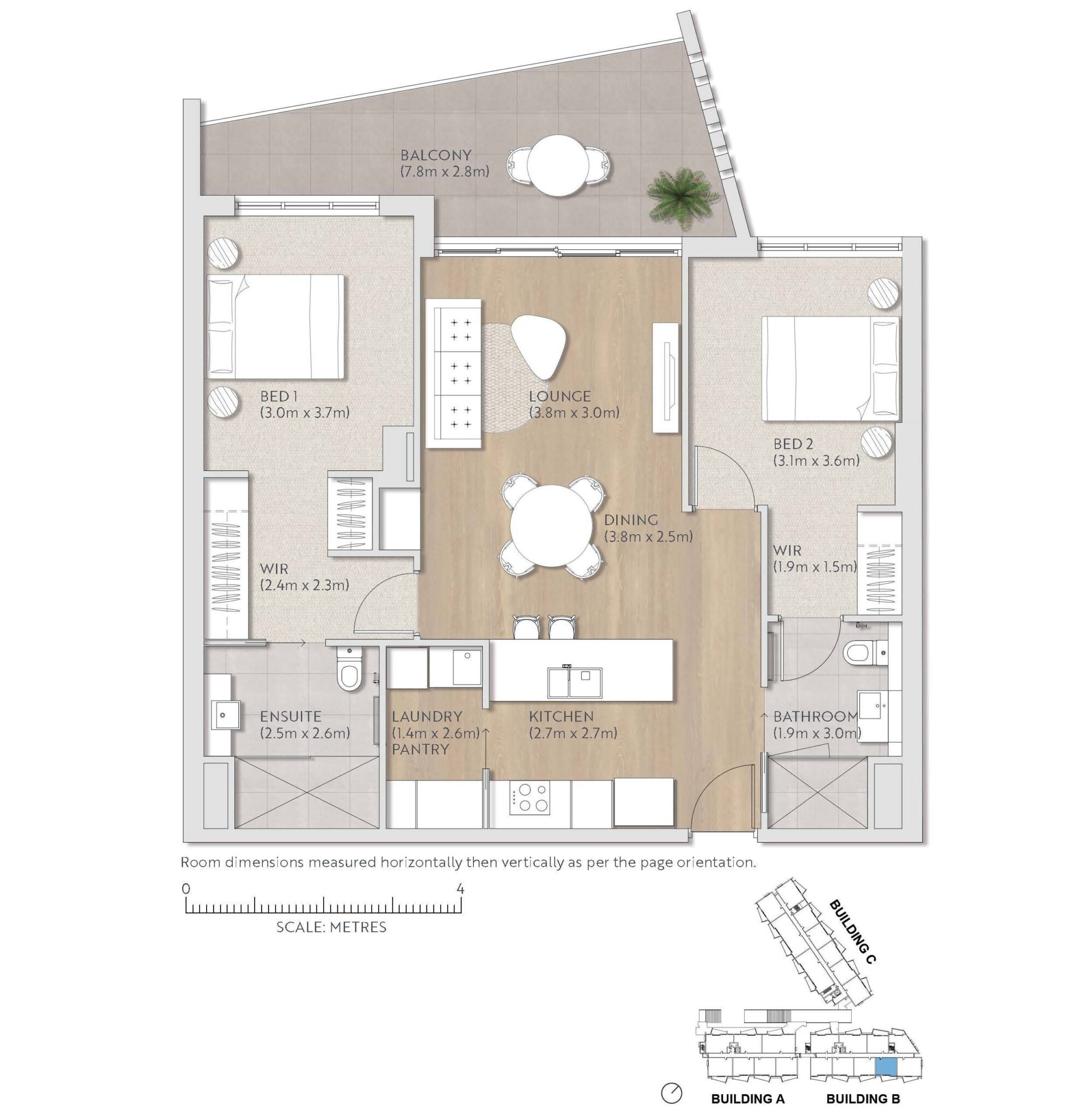
The master bedroom features an ensuite, a walk-through robe, and large windows with captivating views. Book an inspection today to discover a thoughtfully designed space that blends style with functionality.












Apartment Features
- Two spacious bedrooms with a master ensuite and guest bathroom
- Stone benchtops in the kitchen and bathrooms
- High ceilings with fans in the bedrooms and ducted, zoned air-conditioning throughout
- Your choice of outlooks, from the rolling escarpment to the fairways of the Toowoomba Golf Club
- Modern appliances including a built-in dishwasher, sleek stainless-steel oven, induction stove top, and dryer
Discover our facilities
View all facilitiesOpening hours
If you’d like to visit us outside these hours please get in touch with us
- Monday - Friday 8:30 am - 5:00 pm
- Saturday By appointment only
- Sunday Closed
The Ninth
Unmatched comfort and security, vibrant social connections, and a range of tailored amenities
Get in touch
Enquiries
Not sure where to start? We’re here to help.
The Ninth Middle Ridge Team
Our door is always open and we promise to put the needs of our residents first.




Location
Give us a visit